Dom Jastków
Jastków Pokaż na mapie ›
Odświeżone: Czwartek, 05 Luty, 2026 10:11
840 000 zł
6176 zł/m2
Szczegóły ogłoszenia
- Kategoria: Domy / Sprzedaż
- Powierzchnia:136 m2
- Liczba pokoi:5 i więcej pokoi
- Pow. działki:375 m2
- Rynek:Pierwotny
- Rok budowy:2025
- Sprzedaż:Pośrednik
- Cena: 840 000 zł / 6176 zł/m2
Opis oferty
JASTKÓWNowoczesne domy bliźniacze 10 minut od centrum Lublina
Komfort. Przestrzeń. Bliskość natury.
Nowy Jastków to kameralne osiedle domów jednorodzinnych w zabudowie bliźniaczej, położone w spokojnej, zielonej okolicy, zaledwie 10 minut jazdy od centrum Lublina. To idealna propozycja dla osób szukających funkcjonalnego, nowoczesnego domu z szybkim dojazdem do miasta.
Parametry domu:
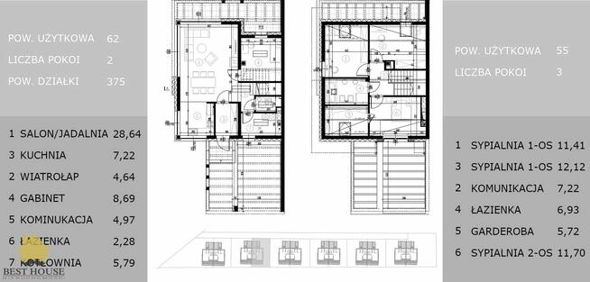
Powierzchnia użytkowa: 117 m²
Parter: 62 m²
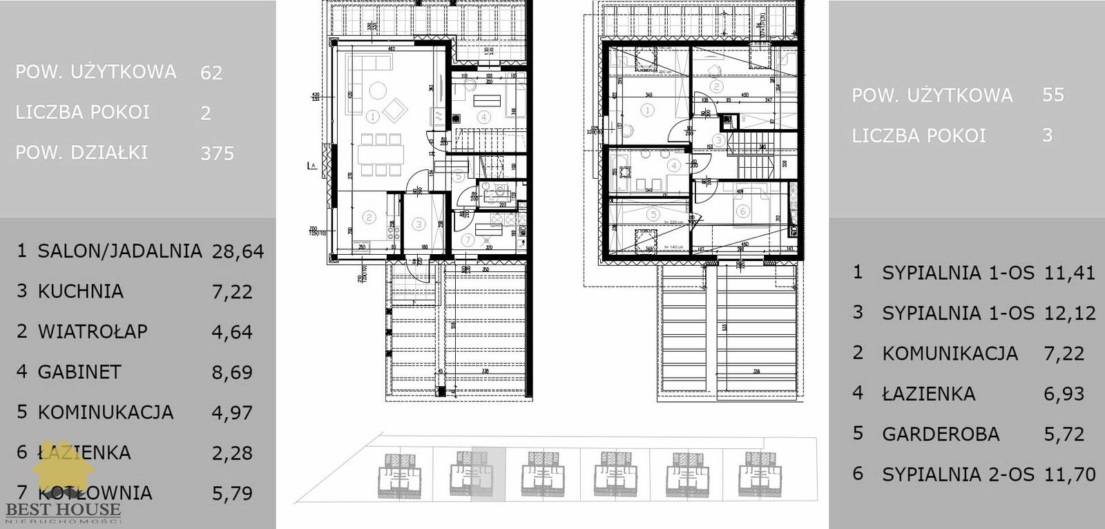
Poddasze: 55 m²
Działka: 375 m² (ogrodzona, prywatna)
Liczba pokoi: 5
Liczba łazienek: 2
Zabudowa: bliźniacza
Funkcjonalny rozkład pomieszczeń:
Parter to przestronny salon z otwartą kuchnią, która dzięki dwóm dużym oknom jest doskonale doświetlona. Dodatkowy pokój świetnie sprawdzi się jako gabinet lub sypialnia gościnna. Na tym poziomie znajduje się również łazienka z prysznicem oraz kotłownia z miejscem na pralnię.
Na poddaszu zaprojektowano trzy ustawne sypialnie oraz dużą łazienkę. Główna sypialnia posiada dodatkowo przestronną garderobę.
Lokalizacja:
Inwestycja znajduje się w cichej i zielonej części Jastkowa, w sąsiedztwie nowoczesnej zabudowy jednorodzinnej. Położenie osiedla zapewnia codzienny spokój, jednocześnie gwarantując szybki i wygodny dojazd do Lublina.
Co zyskujesz:
Nowoczesna architektura
Funkcjonalny, przemyślany układ pomieszczeń
Własny ogród do wypoczynku i rekreacji
Kameralne osiedle z niską zabudową
Komfortowe warunki do życia dla całej rodziny
730 - pokaż numer telefonu - Zapraszamy do kontaktu i umówienia prezentacji domu pokazowego.
Nowy Jastków - Twoje miejsce do życia.
Pośrednik odpowiedzialny zawodowo za wykonanie umowy pośrednictwa: Ewelina Wąsik (licencja nr: )
--------------------------
Licencjonowany Pośrednik - Ewelina, Joanna Wąsik, nr licencji 19930
Oferta wysłana z systemu Galactica Virgo
Numer oferty: BSH-DS-3120-6
Sprawdź zainteresowanie tym ogłoszeniem
Wyświetlenia
Data dodania
Ostatnio widziany
Obserwujących
Wysłane zapytania
Odsłony telefonu
Powiadom o podobnych ogłoszeniach
Lokalizacja: Jastków
Kategoria: Nieruchomości » Domy » Sprzedaż
Cena: od 714000 zł do 966000 zł Powierzchnia : od 116 m2 do 156 m2
Chcę otrzymywać powiadomienia o nowych ofertach
- Wypromuj ogłoszenie
- Zgłoś naruszenie
- Drukuj ulotkę
- Edytuj/usuń ogłoszenie
- Udostępnij ogłoszenie
- Dodaj na Facebook








