Dom Jastków

Odświeżone: Czwartek, 09 Październik, 2025  09:21
840 000 zł
6176 zł/m2

Szczegóły ogłoszenia

  • Kategoria: Domy / Sprzedaż
  • Powierzchnia:136 m2
  • Liczba pokoi:5 i więcej pokoi
  • Pow. działki:375 m2
  • Rynek:Pierwotny
  • Rok budowy:2025
  • Sprzedaż:Pośrednik

Opis oferty

JASTKÓW
Nowoczesne domy bliźniacze 10 minut od centrum Lublina


Komfort. Przestrzeń. Bliskość natury.

Nowy Jastków to kameralne osiedle domów jednorodzinnych w zabudowie bliźniaczej, położone w spokojnej, zielonej okolicy, zaledwie 10 minut jazdy od centrum Lublina. To idealna propozycja dla osób szukających funkcjonalnego, nowoczesnego domu z szybkim dojazdem do miasta.


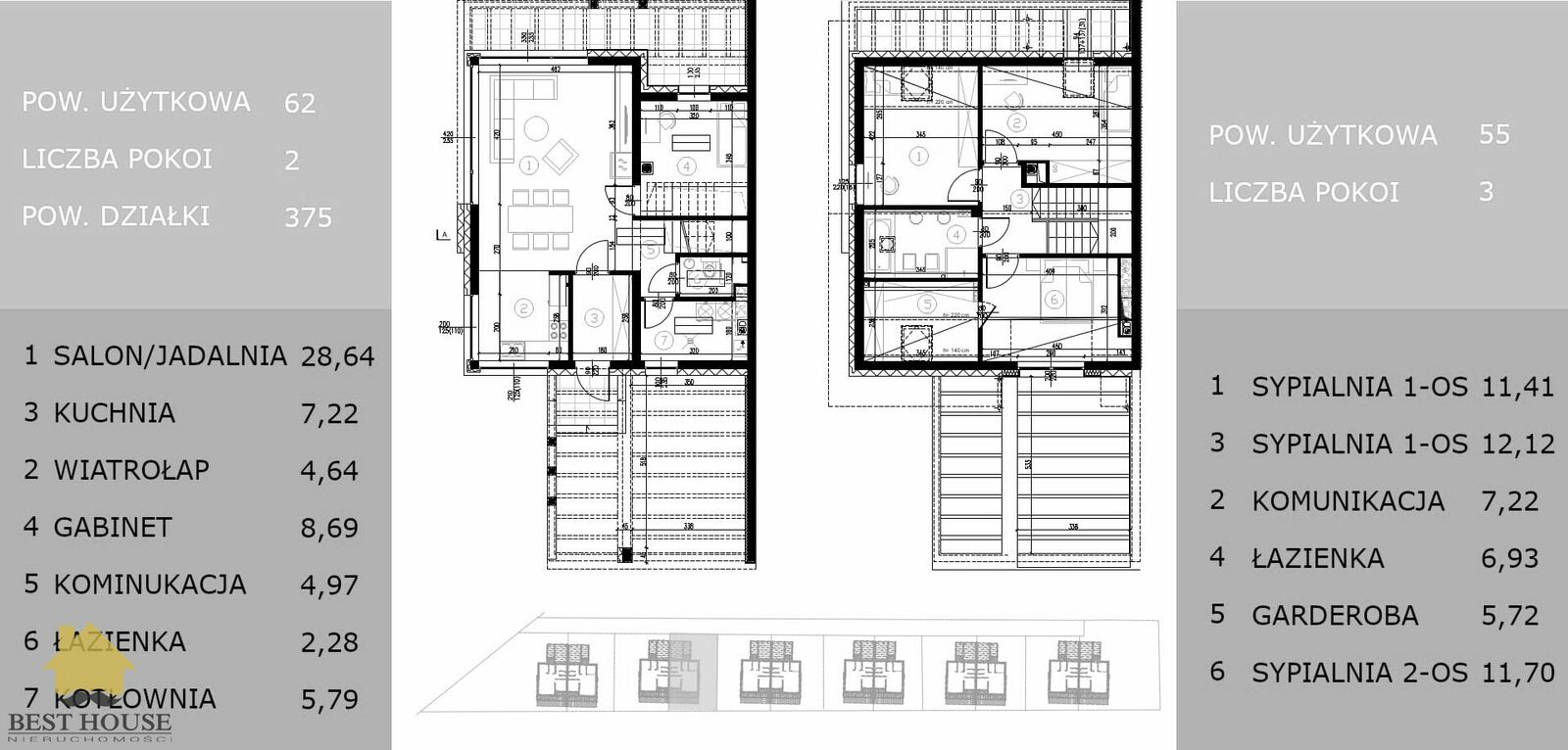
Parametry domu:



Powierzchnia użytkowa: 117 m²



Parter: 62 m²


Poddasze: 55 m²




Działka: 375 m² (ogrodzona, prywatna)


Liczba pokoi: 5


Liczba łazienek: 2


Zabudowa: bliźniacza




Funkcjonalny rozkład pomieszczeń:

Parter to przestronny salon z otwartą kuchnią, która dzięki dwóm dużym oknom jest doskonale doświetlona. Dodatkowy pokój świetnie sprawdzi się jako gabinet lub sypialnia gościnna. Na tym poziomie znajduje się również łazienka z prysznicem oraz kotłownia z miejscem na pralnię.

Na poddaszu zaprojektowano trzy ustawne sypialnie oraz dużą łazienkę. Główna sypialnia posiada dodatkowo przestronną garderobę.


Lokalizacja:

Inwestycja znajduje się w cichej i zielonej części Jastkowa, w sąsiedztwie nowoczesnej zabudowy jednorodzinnej. Położenie osiedla zapewnia codzienny spokój, jednocześnie gwarantując szybki i wygodny dojazd do Lublina.


Co zyskujesz:



Nowoczesna architektura


Funkcjonalny, przemyślany układ pomieszczeń


Własny ogród do wypoczynku i rekreacji


Kameralne osiedle z niską zabudową


Komfortowe warunki do życia dla całej rodziny




730 - pokaż numer telefonu - Zapraszamy do kontaktu i umówienia prezentacji domu pokazowego.
Nowy Jastków - Twoje miejsce do życia.

--------------------------

Licencjonowany Pośrednik - Ewelina, Joanna Wąsik, nr licencji 19930


Oferta wysłana z systemu Galactica Virgo

Numer oferty: BSH-DS-3120-4
Sprawdź zainteresowanie tym ogłoszeniem
Wyświetlenia
Data dodania
Ostatnio widziany
Obserwujących
Wysłane zapytania
Odsłony telefonu
Powiadom o podobnych ogłoszeniach
Lokalizacja: Jastków
Kategoria: Nieruchomości » Domy » Sprzedaż
Cena: od 714000 zł do 966000 zł Powierzchnia : od 116 m2 do 156 m2

Chcę otrzymywać powiadomienia o nowych ofertach

Uzupełnij adres e-mailWpisz poprawny adres e-mail
Wyślij wiadomość

Wyślij wiadomość

Na Lento.pl od 10 sty 2014
Strona użytkownika
  • Wypromuj
  • Zgłoś naruszenie
  • Drukuj ulotkę
  • Edytuj/usuń
Wyczyść historię

Udostępnij ogłoszenie

Udostępnij na FacebookUdostępnij na X Kopiuj link do ogłoszenia

Dodaj notatkę

Opis musi być krótszy niż 250 znaków